• 3 years ago
  • 561 views

Description

Quick overview of Amadeus:
Saha Amadeus is a large project spread over an area of 5.85 acres. Saha Amadeus comprises of 3 BHK and 4 BHK Apartments in Noida. Saha Amadeus is built by Sara Group at Sector-143, Noida. The floor plan of Saha Amadeus presents the floor plans with 32 floors. The major amenities in Saha Amadeus includes Landscaped Garden, Indoor Games, CCTV Cameras, Swimming Pool, Gymnasium, Play Area, Rain Water Harvesting, Lift, Club House, Tennis Court, Wifi, Car Parking, Fire Safety, Gated community, Jogging Track, 24Hr Backup Electricity, Basket Ball Court, Drainage and Sewage Treatment, Meditation Hall, Party Area, Multi-purpose Hall, Terrace Party Area, Outdoor games and Security.
About Amadeus: Favourably located in Sector 143, Noida Express Way in Noida, Amadeus is a meticulously planned project. It is spread over a sprawling area of 3 Acre. The project features a total of 310 units that are well-ventilated.
All the units of this project are Under Construction. The project comprises of 3 towers, each of which has been carefully constructed. The launch date of this grand project is 01 January 2013. The project is available for possession from 01 June 2021.

Overview

  • Address GH-02, Noida-Greater Noida Expy, Sector 143, Noida, Uttar Pradesh
  • Country India
  • City/Town
  • Postal code/ZIP 201307

Details

  • Property ID 9100
  • Price Price on call
  • Property Type ,
  • Property Status
  • Property Label
  • Rooms 3
  • Bedrooms 3
  • Bathrooms 3
  • Year Built 2021
  • Size 3,000 SqFt
  • Garages 1

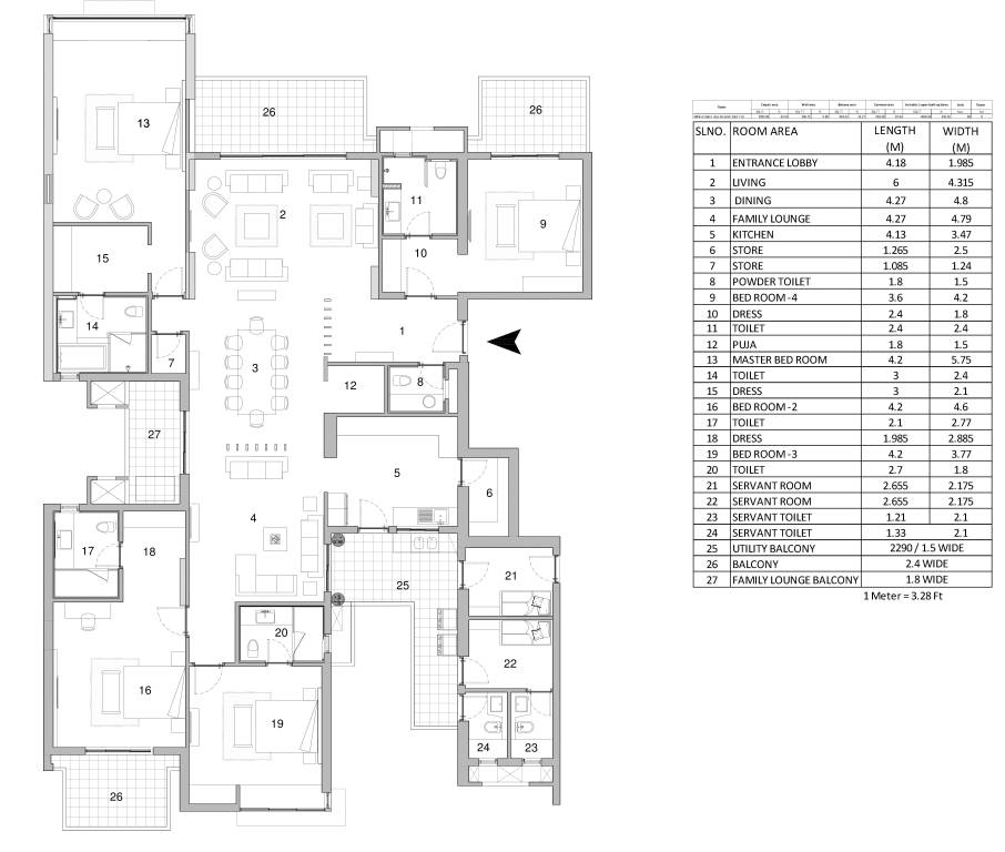
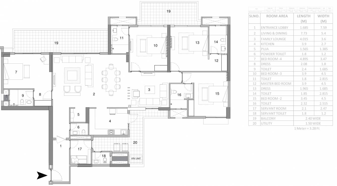
Floor Plans

All Floor

  • Size: 4600
  • Bedrooms: 4
  • Bathrooms: 4
  • Price: ₹36,600,000

Why Buy in Amadeus? Sector 143 — 0 kms from the Noida-Greater Noida Expressway and from the proposed FNG Expressway. 200 m frontage along 75 m wide sector road, which provides easy accessibility to DND Flyway and Yamuna Expressway. Proposed metro link within 1 km radius from the site. Easy connectivity to healthcare services such as Max Hospital, Fortis, Escort Heart Institute, Apollo Indraprastha, Kailash and Indo-Gulf Hospitals. Close proximity to educational institutions such as Jamia Millia Islamia University, Amity University, Mahamaya University as well as to Greater Noida Educational City. Reputed schools in the vicinity include The Shriram Millennium School, Lotus Valley School, Genesis Global School, DPS Expressway, and Step-by-Step World School. Nearby attractions include Night Safari Park, Buddh International Circuit (F1 Track), Worlds of Wonder Amusement & Water Park, Sector 18 Commercial District, Noida City Centre, Noida Golf Course, Botanical Garden.

Mortgage Calculator

Nearby Places

ACCESS_LIMIT_REACHED: You've reached the access limit for this client. See instructions for requesting a higher access limit at https://docs.developer.yelp.com/docs/fusion-rate-limiting
ACCESS_LIMIT_REACHED: You've reached the access limit for this client. See instructions for requesting a higher access limit at https://docs.developer.yelp.com/docs/fusion-rate-limiting
ACCESS_LIMIT_REACHED: You've reached the access limit for this client. See instructions for requesting a higher access limit at https://docs.developer.yelp.com/docs/fusion-rate-limiting

Rating & Reviews

Avarage User Rating

0/ 5

Rating Breakdown

  • 0%
  • 0%
  • 0%
  • 0%
  • 0%

Write A Review

Compare